Voor Project Green C in Oostende, een stadsvernieuwend project van Vastgoedgroep Degroote, staat ECO Comfort in voor de isolatie van de technische schachten in meerdere woonclusters. Het project omvat onder meer The Garden, The Villa’s, The Cube, The Park I, The Park II en het nog lopende The Square. De technische schachten werden onder druk ingeblazen met minerale inblaaswol, uitgevoerd met mobiele inblaasinstallaties voor een snelle, stofvrije en nauwkeurige plaatsing. Deze aanpak garandeert niet alleen thermisch en akoestisch comfort, maar ook continuïteit in de werfplanning, binnen dit groen stadsproject op wandelafstand van zee en stad.
Heb je vragen over dit project of over een gelijkaardige werf? We helpen je graag verder.
PROJECTSPECIFIEK ADVIES
Wil je weten hoe we dit aanpakten en of dit ook voor jouw project werkt? Vraag het ons.
TECHNISCHE VRAGEN
Twijfels over materialen, uitvoeringsmethode of EPB? Onze experts geven snel duidelijkheid.
CONTACTEER ONS
Geef ons een belletje of mail naar offertes@ecocomfort.be. Wij pikken je vraag meteen op en zorgen voor een duidelijk antwoord binnen de 24u op weekdagen.
Projectomschrijving
Comfort ingeblazen in grootschalige stadsontwikkeling aan zee
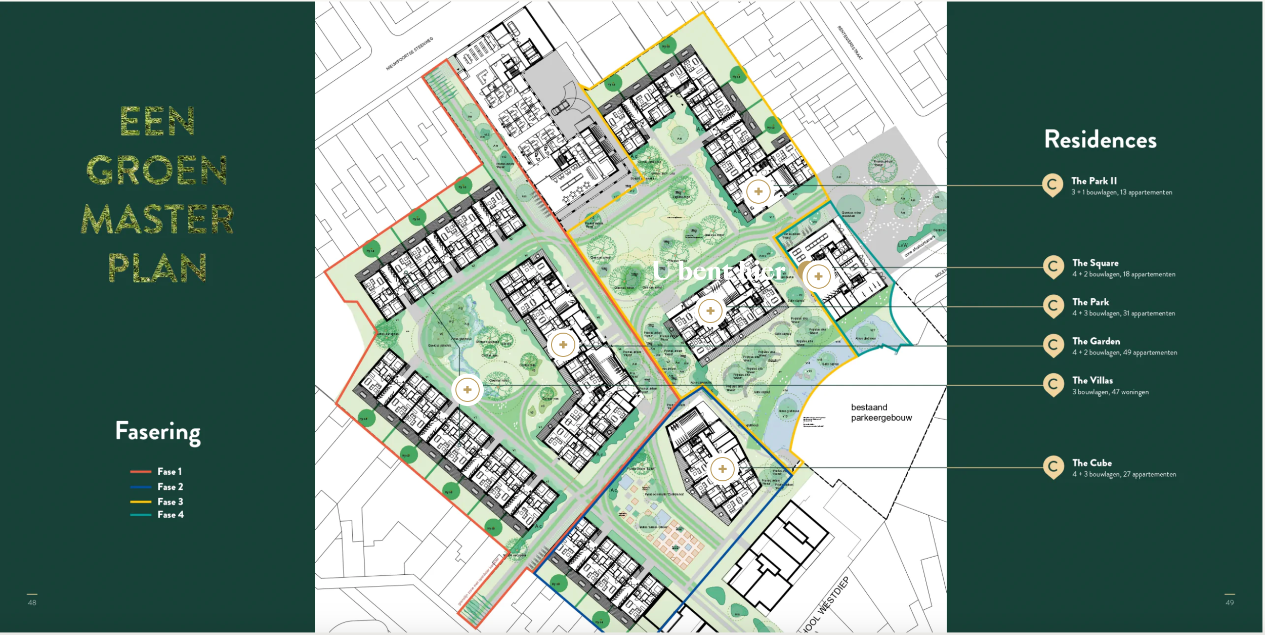
Voor Project Green C in Oostende, een residentiële stadsontwikkeling van Vastgoedgroep Degroote, staat ECO Comfort in voor de isolatie van de technische schachten in verschillende woonentiteiten binnen het project. Het gaat om een gefaseerde uitvoering over meerdere jaren, telkens afgestemd op de voortgang en planning van de werf.
De werken startten in 2022 met The Garden, gevolgd door de Villa’s. Een jaar later werden The Cube en The Park I uitgevoerd. In 2025 volgde The Park II. The Square staat momenteel nog op de planning en vormt de volgende fase binnen dit project.
Uitgevoerde volumes & timing
The Garden – ± 75 m³ · uitgevoerd in 3 dagen
De Villa’s – ± 38 m³ · uitgevoerd in 1 dag
The Cube – ± 55 m³ · uitgevoerd in 2 dagen
The Park I – ± 37 m³ · uitgevoerd in 2 dagen
The Park II – ± 21 m³ · uitgevoerd in 1 dag
The Square – ± 40 m³ · nog te realiseren
Binnen de verschillende fases werd gewerkt met Knauf Supafil en Ursa Pure Floc (beide minerale inblaaswol). Beide oplossingen lenen zich uitstekend voor het onder druk inblazen van technische schachten en zorgen voor een uniforme, volledige vulling met sterke thermische en akoestische prestaties.
Dankzij het gebruik van mobiele inblaasinstallaties kon ECO Comfort elke fase snel, stofvrij en uiterst nauwkeurig uitvoeren. De werken werden telkens afgestemd op de werfplanning, zodat andere bouwactiviteiten zonder vertraging konden doorgaan. Na uitvoering zijn de schachten meteen technisch en praktisch klaar voor de volgende bouwfasen.
Voor de opdrachtgever betekent dat: minder opvolging, meer zekerheid en een uitvoering die klopt van de eerste tot de laatste meter.
Green C is dan ook meer dan een woonproject. Het is een groene oase in de stad, met meer dan 60% open ruimte (ruim 10.000 m²) aan natuur, rustplekken en collectieve zones. Tegelijk ligt alles dichtbij: zee, stad, winkels en voorzieningen. Een voorbeeld van hoe duurzame stadsontwikkeling, verdichting en vergroening hand in hand kunnen gaan — en waar wij met onze isolatie-oplossingen mee het comfort achter de schermen verzekeren.
Toepassing
We verzorgden het onder druk inblazen van technische schachten in meerdere woonentiteiten, gespreid over verschillende fases van het project. Daarbij werd gewerkt met een minerale inblaaswol (Knauf Supafil en Ursa Pure Floc), geselecteerd omwille van hun thermische, akoestische en brandveilige prestaties in verticale technische zones.
Materiaal
Voor Project Green C werd gewerkt met minerale inblaaswol, afgestemd op de verschillende fases en technische vereisten van het project. Daarbij kwamen Knauf Supafil en URSA Pure Floc (beide een minerale inblaaswol) aan bod.
De materialen werden toegepast in de technische schachten van meerdere woonentiteiten, verspreid over The Garden (49 appartementen), The Villa’s (28 stapelwoningen), The Cube (27 woonunits), The Park I (31 appartementen), The Park II (13 appartementen) en het nog lopende The Square (18 nieuwbouwappartementen).
Beide oplossingen combineren sterke thermische en akoestische prestaties met uitstekende brandveiligheid, wat hen bijzonder geschikt maakt voor verticale technische schachten in residentiële nieuwbouw.
Dankzij hun vezelstructuur konden de schachten volledig en homogeen worden gevuld. In combinatie met onze mobiele inblaasinstallaties resulteerde dit in een nauwkeurige, stofvrije uitvoering, perfect afgestemd op de technische eisen en het tempo van de werf.
Vastgroep Degroote — projectontwikkelaar van Project Green C, een groene woonoase aan zee in het hart van badstad Oostende.
Een toonaangevende speler in residentiële stadsontwikkeling aan de Belgische kust, met een sterke focus op duurzaamheid, kwalitatieve architectuur en doordachte herbestemming van stedelijke sites.
Dankzij de ervaring van ons expertteam én onze mobiele inblaasinstallaties pakken we ook de meest complexe situaties aan. We geraken overal, houden het proper én zorgen voor tijdswinst en een snelle uitvoering.
Werken tussen andere aannemers of met een strakke deadline?
Geen probleem. Wij schuiven naadloos in, blijven flexibel en zorgen dat het vooruit gaat.
Last-minute aanpassingen?
Of het nu gaat om wijzigingen in de planning, extra werkzaamheden, weersomstandigheden of iets anders, we denken mee op basis van wat wél kan en zorgen dat we volle gas vooruit blijven gaan, zodat we de doelen en deadlines gewoon halen. Teamspirit van begin tot eind.
Dankzij de ervaring van ons expertteam én onze mobiele inblaasinstallaties pakken we ook de meest complexe situaties aan. We geraken overal, houden het proper én zorgen voor tijdswinst en een snelle uitvoering.
Werken tussen andere aannemers of met een strakke deadline?
Geen probleem. Wij schuiven naadloos in, blijven flexibel en zorgen dat het vooruit gaat.
Last-minute aanpassingen?
Of het nu gaat om wijzigingen in de planning, extra werkzaamheden, weersomstandigheden of iets anders, we denken mee op basis van wat wél kan en zorgen dat we volle gas vooruit blijven gaan, zodat we de doelen en deadlines gewoon halen. Teamspirit van begin tot eind.
Isolatiematerialen die het verschil maken
Onze keuze voor deze werf
PURE FLOC FRAME
SUPAFIL MAXFRAME
Leverancier:Ursa
PURE FLOC FRAME
Leverancier:Knauf
SUPAFIL MAXFRAME
15J. expertise
4500+ werven
FAQ`s
Specifieke case? Laat het ons weten hiernaast. We sparren graag mee.
Hoe snel staan jullie op de werf na akkoord?
Heel snel. Kleine projecten plannen we meestal binnen de 2 weken in. Voor grotere werven stemmen we altijd in overleg af met de bouwpartners. Dankzij onze flexibele planning en mobiele inblaasunits kunnen we kort schakelen en snel starten, zonder dat de werfplanning in het gedrang komt.
Werken jullie ook als onderaannemer in grotere projecten?
Ja. We werken vaak als gespecialiseerde partner binnen grotere bouwteams. En we zorgen dat onze werken netjes inpassen in de bredere bouwplanning. Eén aanspreekpunt, minimale hinder.
Krijgen we ook hulp richting EPB en attesten?
Ja. Onze isolatiewerken voldoen aan de EPB-eisen en we voorzien de nodige attesten en documenten, zodat jullie administratie meteen in orde is.
Technisch advies voor professionals
Geen theorie, maar +15 jaar vakkennis dat werkt op jouw werf.
Snel schakelen
Flexibel meedenken en meteen inzetbaar met eigen inblaasinstallaties, zelfs op grote of uitdagende werven. Efficiëntie en aanpassingsvermogen van bij de eerste minuut.
één aanspreekpunt
Duidelijke communicatie van begin tot eind, met rechtstreeks contact met de zaakvoerders.
Duurzaam bouwen
Met eco-materialen die topprestaties leveren én voldoen aan alle normen.
Als u een selectie kiest, wordt de hele pagina vernieuwd.